
Wohnanlage Aspach - Marktplatz 8
Marktplatz 8,
5252 Aspach
Der im Jahr 1869 erbaute Vierseithof wurde im Jahr 2002 komplett saniert. Es befinden sich u.a. 18 Wohnungen, das Gemeindeamt, der Stiblersaal und eine Kunst- und Handwerksstube in dem schönen Gebäude. Die Wohnungen sind über die Hofseite erreichbar. Die zu den Wohnungen zugeordneten Kellerabteile befinden sich auf dem gleichen Stockwerk wie die jeweiligen Wohnungen.
- provisionsfrei
- unbefristet
- Abstellplatz
- Kellerabteil
- Allgemeinräume
- Grünanlage
- Fernwärme
Flächen
- Top
- Geschoß
- Zimmer
- Wohnen (ca.)
- Freiflächen
- Eigengarten
- Parkplatz
- Kaution
- Miete (ca.)
- Zimmer: 2
- Freiflächen: m²
- Keller: m²
- Parkplatz: -
- Kaution: € 1.397
- Miete: € 455,30
Marktplatz 8/2/1
Mtl. Miete inkl. BK und USt.
Ohne Strom und Heizung.
vermietbar ab 01.02.2026
HWB-Wert: 72 kWh/m²
HWB-Klasse: C
fGEE-Wert: 1,27
fGEE-Klasse:C
- Zimmer: 3
- Freiflächen: m²
- Keller: m²
- Parkplatz: -
- Kaution: € 2.100
- Miete: € 680,56
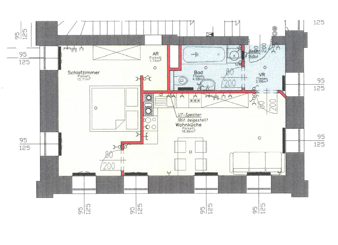
Marktplatz 8/5 - Maisonettewohnung
Monatliche Miete inkl. BK und Ust.
Exkl. Strom und Heizung.
Die Wohnung ist auf 2 Etagen aufgeteilt!
Bezug ab sofort
Keine Freifläche!
1. ET: Vorraum, Bad/WC, Wohnküche, Abstellraum
2. ET: Kinderzimmer, Schlafzimmer, WC
HWB-Wert: 72 kWh/m²
HWB-Klasse: C
fGEE-Wert: 1,27
fGEE-Klasse:C
Sie haben Interesse?
Ich freue mich über Ihre Anfrage!








